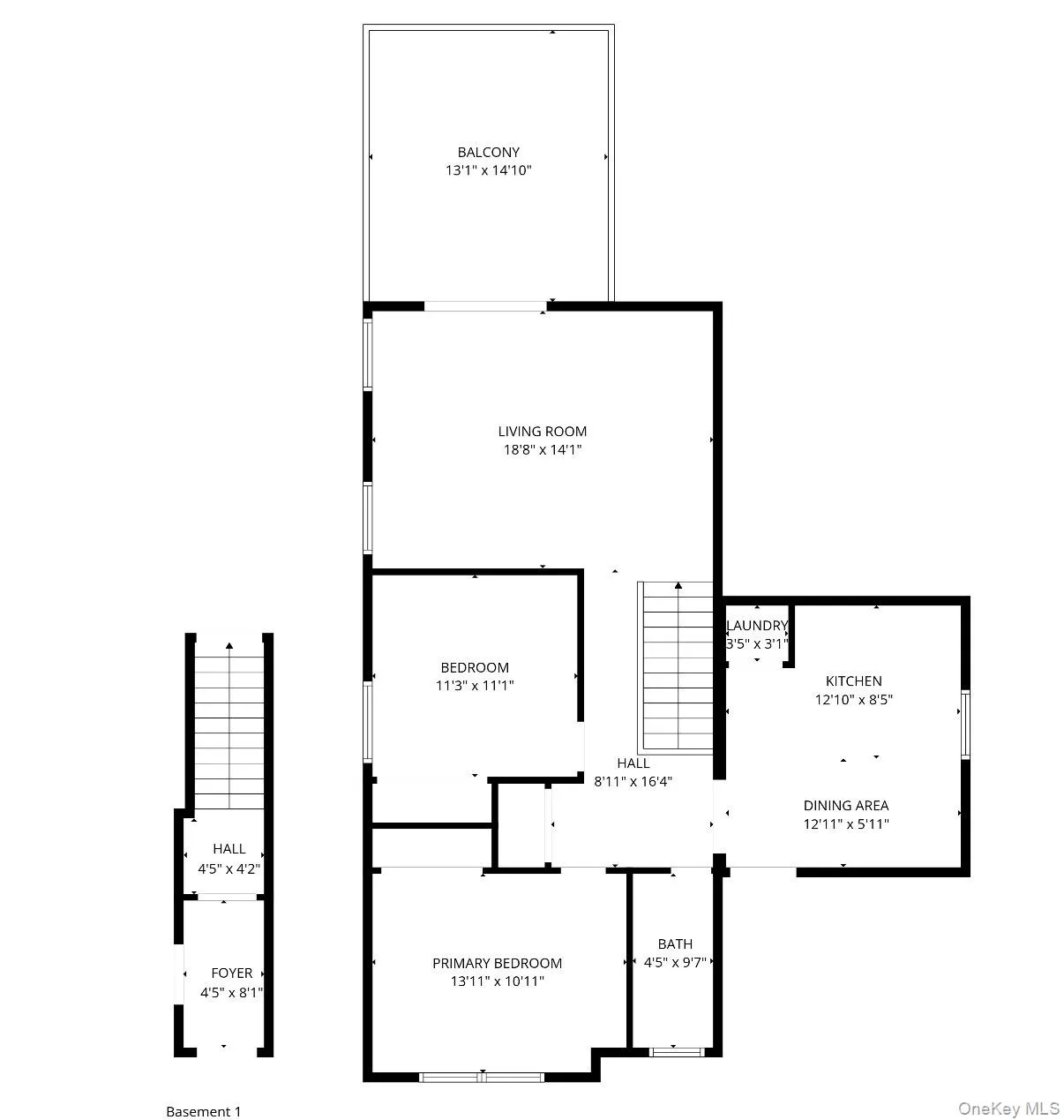
New construction luxury 2-bedroom apartment in Port Jefferson Station. Welcome to modern living redefined in this newly built, second-level residence combining timeless craftsmanship with contemporary design and high-end finishes throughout. The spacious chefs kitchen features custom hardwood cabinetry, sport quartz countertops, stainless steel appliances, & LED recessed lighting. Oversized Andersen windows fill the home with natural eastern sunlight, accentuating the rich looking hardwood floors and open-concept layout. The ultra-modern bathroom offers a sleek, designer aesthetic with porcelain tile walls, a frameless glass shower enclosure, matte black fixtures, and a floating-style vanity with a stone-top sink, all highlighted by clean architectural lighting. Additional features include forced hot-air heating, central air conditioning, and a dedicated laundry room for added convenience. Step outside to enjoy the 2nd floor balcony, an expansive backyard, and designated off-street parking. This rental includes all utilities and Wi-Fi, providing exceptional value and ease of living. Ideally located in Port Jefferson Station, this residence offers close proximity to Stony Brook University, Mather Hospital, Saint Charles Hospital, both LIRR Port Jefferson Station, Ronkonkoma LIRR station, with local shopping, restaurants, eateries, supermarkets, and retail centers all just minutes away. Conveniently situated less than 20 minutes from the Long Island Expressway, this home delivers the perfect blend of luxury, comfort, and accessibility an exceptional opportunity to enjoy modern living at its finest.
Monthly rent includes all utilities, including high-speed Internet service. A formal rental application is required for consideration, which includes a full background check, credit check, and verification of income and method of rent payment.
One-year lease term.
- Heating System:
- Heat Pump
- Cooling System:
- Zoned
- Appliances:
- Refrigerator, Microwave, Stainless Steel Appliance(s), Dryer, Washer, Cooktop, Freezer, Electric Cooktop
- Flooring:
- Hardwood
- Interior Features:
- Entrance Foyer, High Ceilings, Pantry, Smart Thermostat, Recessed Lighting
- Laundry Features:
- In Kitchen
- Parking Features:
- Driveway
- Sewer:
- Cesspool
- Utilities:
- Cable Connected, Electricity Connected
- City:
- Brookhaven
- State:
- NY
- Street:
- Lamport
- Street Number:
- 42
- Street Suffix:
- Avenue
- Postal Code:
- 11776
- Floor Number:
- 0
- Longitude:
- W74° 57' 11.7''
- Latitude:
- N40° 55' 23.1''
- Directions:
- Use GPS
- PostalCity:
- Port Jefferson
- Architectural Style:
- Colonial, Contemporary
- Construction Materials:
- Frame
- Elementary School:
- Boyle Road Elementary School
- High School:
- Comsewogue High School
- Levels:
- One
- Agent MlsId:
- 196049
- MiddleOrJunior School:
- John F Kennedy Middle School - Suffolk
- PhotosCount:
- 16
- Special Listing Conditions:
- No
- Stories Total:
- 2
- Water Source:
- Public
- Office MlsId:
- ALIA01
Residential Lease - MLS# 973490
42 Lamport Avenue, Brookhaven, NY
- Property Type :
- Residential Lease
- Property SubType :
- Apartment
- Listing Type :
- For Rent
- Listing ID :
- 973490
- Price :
- $3,600
- Rooms :
- 5
- Bedrooms :
- 2
- Bathrooms :
- 1
- Bathrooms Total :
- 1
- Square Footage :
- 1,000 Sqft
- Lot Area :
- 0.14 Acre
- Year Built :
- 2025
- Status :
- Active
- Listing Agent :
- Nicholas A. Colonna
- Listing Office :
- Aliano Real Estate

















