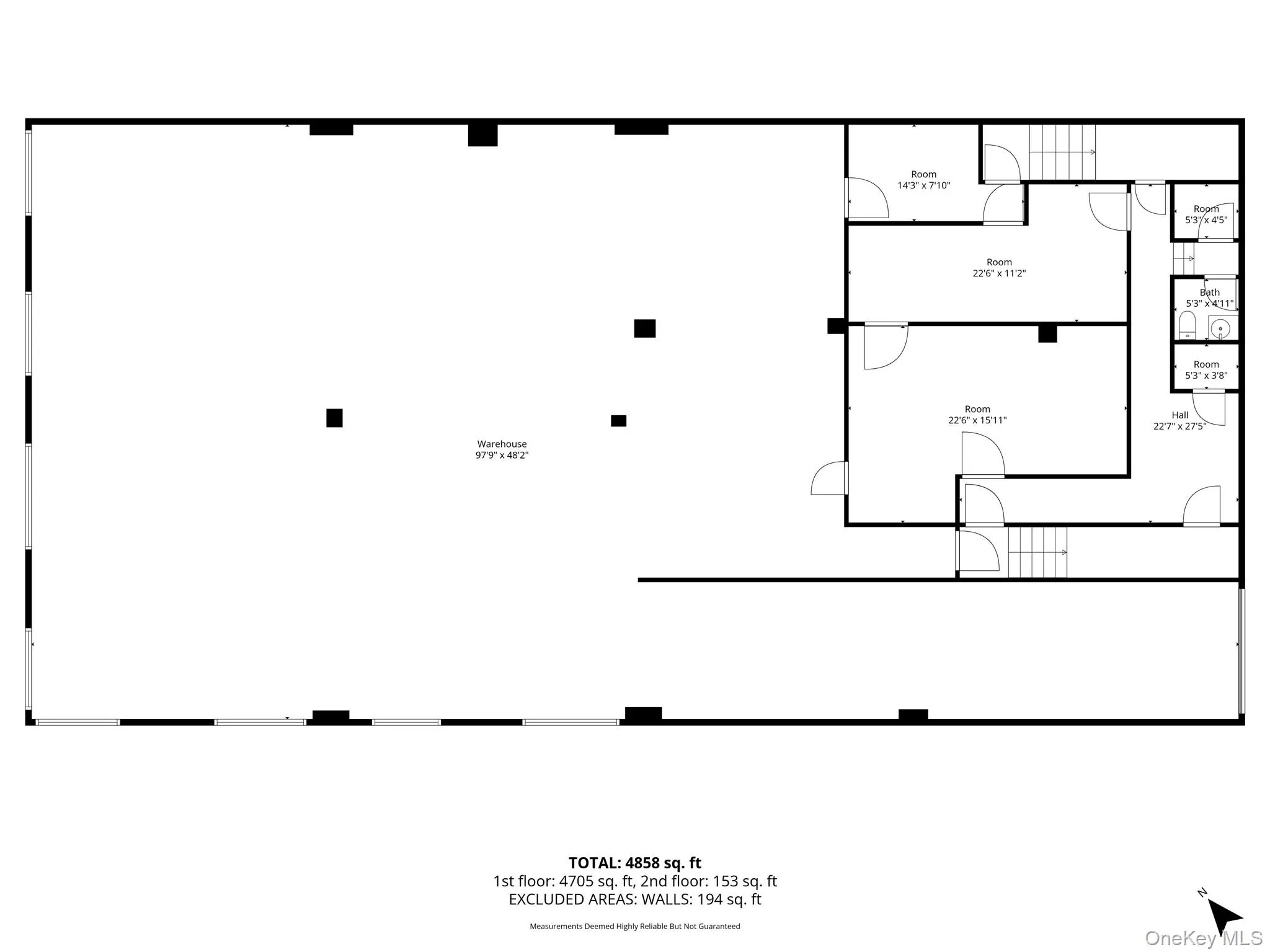
Approximately 4,858 SF warehouse/garage space with dedicated office component, located on the west side of Crescent Street just off 39th Avenue in the heart of Dutch Kills, Long Island City. The property sits only three blocks from Queensboro Plaza, offering excellent access to Manhattan, Queens, and major transportation routes.
The space is well-suited for a variety of flexible uses, including garage, storage, warehouse, showroom, and office. Ideal for businesses seeking a functional LIC location with strong connectivity and mixed-use potential.
Zoning: M1-2 / R5D
Total Size: Approx. 4,500 SF
Uses: Garage, Storage, Warehouse, Showroom, Office
Neighborhood: Dutch Kills, Long Island City
Excellent opportunity for owner-users or tenants looking to establish or expand operations in one of Queens’ most desirable industrial submarkets. Featured Commercial Lease/Rentals.
- Heating System:
- Natural Gas
- Cooling System:
- Energy Star Qualified Equipment, Electric
- Basement:
- Finished
- Sewer:
- Public Sewer
- Utilities:
- Natural Gas Connected, Cable Connected, Water Connected, Electricity Connected, Sewer Connected, Phone Connected
- City:
- NY
- State:
- NY
- Street:
- Crescent
- Street Number:
- 3906
- Street Suffix:
- Street
- Postal Code:
- 11101
- Floor Number:
- 0
- Longitude:
- W75° 59' 38.3''
- Latitude:
- N40° 42' 45.8''
- UnitNumber:
- Lower
- PostalCity:
- Long Island City
- Construction Materials:
- Brick
- Agent MlsId:
- 131512
- PhotosCount:
- 9
- Special Listing Conditions:
- No
- Tax Annual Amount:
- $55,510
- Water Source:
- Public
- Office MlsId:
- NYSP01
- Zoning:
- M1-2
Commercial Lease - MLS# 955365
3906 Crescent Street, New York, NY
- Property Type :
- Commercial Lease
- Property SubType :
- Industrial
- Listing Type :
- For Rent
- Listing ID :
- 955365
- Price :
- $10,000
- Bathrooms Total :
- 0
- Building Area :
- 10,000 Sqft
- Lot Area :
- 0.12 Acre
- Year Built :
- 1945
- Status :
- Active
- Listing Agent :
- Luca DiCiero
- Listing Office :
- NY Space Finders Inc










