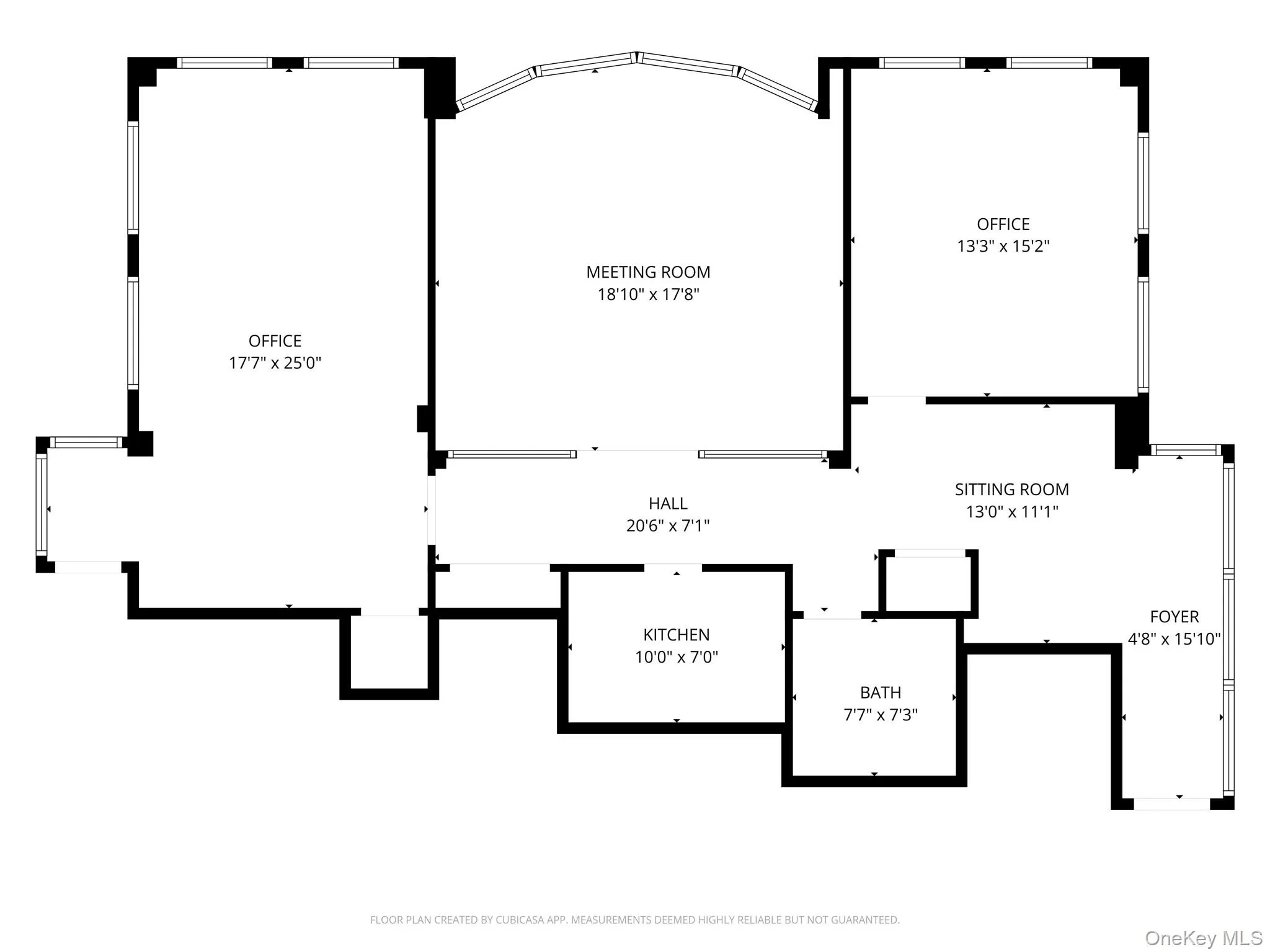
Excellent Leasing Opportunity – 1,700 SF Class A Medical/Professional Office Suite This 1,700 SF second-floor suite is located in a newly built, modern two-story Class A office building along the highly traveled W. Jericho Turnpike in Commack, at the Smithtown border. The property offers a truly move-in ready environment, making it an ideal choice for a wide range of professional or medical office uses. The suite features modern finishes throughout and is in pristine Class A condition, providing tenants with a professional and welcoming atmosphere from day one. A highlight of the space is its large conference room, which is filled with natural light from expansive windows, creating a bright and inviting setting for meetings, collaboration, or client consultations. The building is strategically positioned with convenient access to major retailers and highways, ensuring ease of travel for both staff and clients. Situated on a spacious 0.95-acre lot, the property offers ample on-site parking to accommodate employees and visitors alike. The suite is supported by gas heat with four zones and an 800-amp electric service, ensuring efficient and reliable operations tailored to the needs of professional and medical tenants. This opportunity combines modern design, premium amenities, and functional efficiency, offering tenants a space that is both impressive and practical.
- Heating System:
- Forced Air
- Cooling System:
- Central Air
- Sewer:
- Cesspool
- Utilities:
- Cable Connected, Electricity Connected, Phone Connected
- City:
- Smithtown
- State:
- NY
- Street:
- Jericho
- Street Number:
- 1092
- Street Suffix:
- Turnpike
- Postal Code:
- 11725
- Floor Number:
- 0
- Longitude:
- W74° 47' 57.6''
- Latitude:
- N40° 51' 21.4''
- UnitNumber:
- 2N
- PostalCity:
- Smithtown
- Construction Materials:
- Brick
- Agent MlsId:
- 215261
- PhotosCount:
- 13
- Special Listing Conditions:
- No
- Tax Annual Amount:
- $41,995
- Water Source:
- Public
- Office MlsId:
- DERE73
Commercial Lease - MLS# 951029
1092 Jericho Turnpike, Smithtown, NY
- Property Type :
- Commercial Lease
- Property SubType :
- Office
- Listing Type :
- For Rent
- Listing ID :
- 951029
- Price :
- $6,000
- Bathrooms Total :
- 0
- Building Area :
- 1,700 Sqft
- Lot Area :
- 0.16 Acre
- Status :
- Active
- Listing Agent :
- Thomas Tortorici
- Listing Office :
- Douglas Elliman Comm of LI LLC














