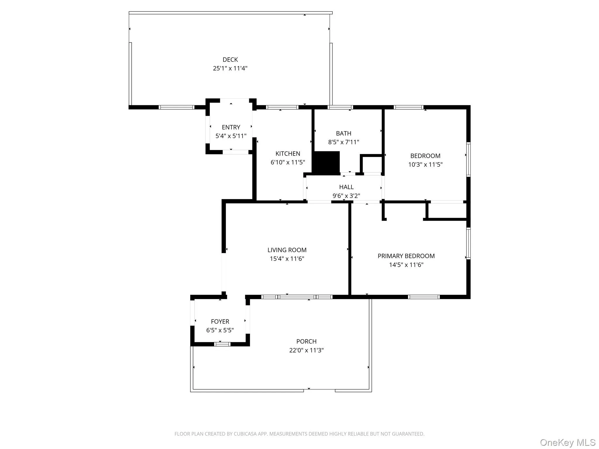
Welcome to this bright and inviting 2-bedroom, 1-bath duplex raised ranch! The main level offers two generous bedrooms with hardwood floors, a sun-filled living room with a large picture window, and direct access to a spacious private deck surrounded by mature trees—perfect for relaxing or entertaining.
The lower level includes a garage, a separate laundry room with storage, and additional space for convenience.
Located on a quiet cul-de-sac, this home is ideally situated near the Dutchess Rail Trail, with a park, playground, and ballfield right across the street. Metro-North is just a 10-minute drive, and Vassar College, shops, and restaurants are all close by.
Additional Details: Tenant responsible for heating, gas, and electricity, Landlord provides water, yard care, and sanitation, No dogs; no smoking permitted. Cats Allowed (Agent discloses ownership interest) Lease start: Immediate Occupancy
- Heating System:
- Oil
- Cooling System:
- Wall/window Unit(s)
- Basement:
- Full
- Patio:
- Porch, Deck
- Appliances:
- Oven, Refrigerator, Dryer, Washer, Range, Gas Water Heater
- Garage Spaces:
- 1
- Interior Features:
- Storage, First Floor Bedroom
- Laundry Features:
- Laundry Room
- Parking Features:
- Driveway, Garage, Garage Door Opener
- Sewer:
- Public Sewer
- Utilities:
- Cable Available, Electricity Available, Trash Collection Private, Water Connected, Sewer Connected
- City:
- Poughkeepsie (town)
- State:
- NY
- Street:
- Overocker
- Street Number:
- 102
- Street Suffix:
- Road
- Postal Code:
- 12603
- Floor Number:
- 0
- Longitude:
- W74° 7' 17.5''
- Latitude:
- N41° 41' 44.6''
- UnitNumber:
- 2
- Architectural Style:
- Raised Ranch
- Construction Materials:
- Frame, Wood Siding
- Elementary School:
- Arthur S May School
- High School:
- Arlington High School
- Agent MlsId:
- 47401
- MiddleOrJunior School:
- Lagrange Middle School
- PhotosCount:
- 23
- Rent Includes:
- Trash Collection, Water
- Special Listing Conditions:
- No
- Water Source:
- Public
- Office MlsId:
- KWNYC
Residential Lease - MLS# 913699
102 Overocker Road, Poughkeepsie (town), NY
- Property Type :
- Residential Lease
- Property SubType :
- Multi Family
- Listing Type :
- Idx
- Listing ID :
- 913699
- Price :
- $2,150
- Rooms :
- 4
- Bedrooms :
- 2
- Bathrooms :
- 1
- Bathrooms Total :
- 1
- Square Footage :
- 840 Sqft
- Lot Area :
- 0.76 Acre
- Year Built :
- 1961
- Status :
- Active
- Listing Agent :
- Ladie Whitaker
- Listing Office :
- Keller Williams NYC
























