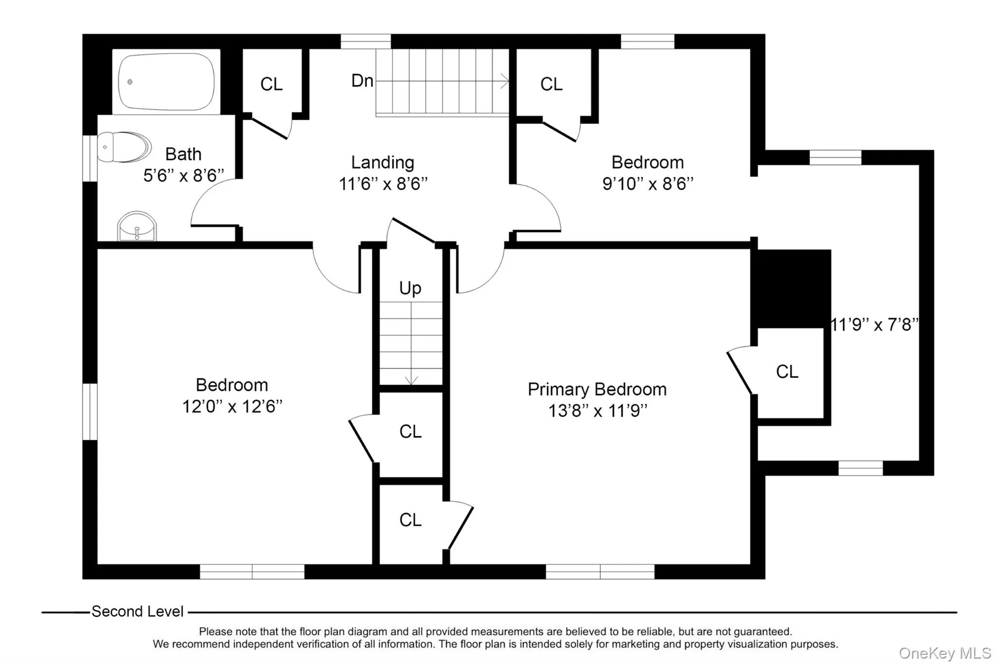
In the middle of quiet block in Pelham Manor, this comfy rental home can be YOUR home in 2026! Step into a welcoming living room with a wood burning fireplace, powder room, renovated kitchen, pretty dining room and sunroom on the first floor. Upstairs there are 3 bedrooms (one is 2 room suite) and a full bath. A large storage attic will hold all your stuff. Full basement with a washer and dryer and additional storage. A huge back yard, one car garage and just steps from the Prospect Hill elementary school with its fabulous playground and playing field. As a resident of Pelham Manor you also have year round deeded rights to use the enormous Shore Park on the Long Island Sound. House is available February 1st. Yes pets are welcome. Tenant pays own utilities. Please allow a few hours notice for showings so the current tenants can vacate for showings.
- Heating System:
- Hot Water
- Cooling System:
- Multi Units
- Basement:
- Full
- Appliances:
- Dishwasher, Oven, Refrigerator, Microwave, Stainless Steel Appliance(s), Dryer, Washer, Oil Water Heater, Gas Cooktop
- Fireplace Features:
- Wood Burning, Living Room
- Fireplaces Total:
- 1
- Flooring:
- Hardwood
- Garage Spaces:
- 1
- Interior Features:
- Eat-in Kitchen, Pantry, Storage, Chefs Kitchen, Original Details, Formal Dining, Chandelier
- Laundry Features:
- In Basement
- Lot Features:
- Level, Near School
- Parking Features:
- Garage, Detached
- Sewer:
- Public Sewer
- Utilities:
- Trash Collection Public, Natural Gas Connected, Water Connected, Electricity Connected, Sewer Connected
- City:
- Pelham
- State:
- NY
- Neighborhood:
- Pelham
- Street:
- Hunter
- Street Number:
- 1083
- Street Suffix:
- Avenue
- Postal Code:
- 10803
- Floor Number:
- 0
- Longitude:
- W74° 11' 41.1''
- Latitude:
- N40° 53' 16.7''
- Direction Faces:
- North
- Architectural Style:
- Colonial
- Construction Materials:
- Frame
- Elementary School:
- Prospect Hill
- High School:
- Pelham Memorial High School
- Levels:
- Two
- Agent MlsId:
- 10175
- MiddleOrJunior School:
- Pelham Middle School
- PhotosCount:
- 16
- Rent Includes:
- Sewer, Trash Collection, Recycling
- Special Listing Conditions:
- No
- Water Source:
- Public
- Office MlsId:
- JBFSOT05
Residential Lease - MLS# 941146
1083 Hunter Avenue, Pelham, NY
- Property Type :
- Residential Lease
- Property SubType :
- Single Family Residence
- Listing Type :
- Idx
- Listing ID :
- 941146
- Price :
- $6,000
- Rooms :
- 9
- Bedrooms :
- 3
- Bathrooms :
- 2
- Bathrooms Total :
- 2
- Square Footage :
- 1,774 Sqft
- Building Area :
- 1,774 Sqft
- Lot Area :
- 0.13 Acre
- Year Built :
- 1924
- Status :
- Active
- Listing Agent :
- Holly Mellstrom
- Listing Office :
- Julia B Fee Sothebys Int. Rlty

















