Property Description
Office Space Available For Lease – Prime Location
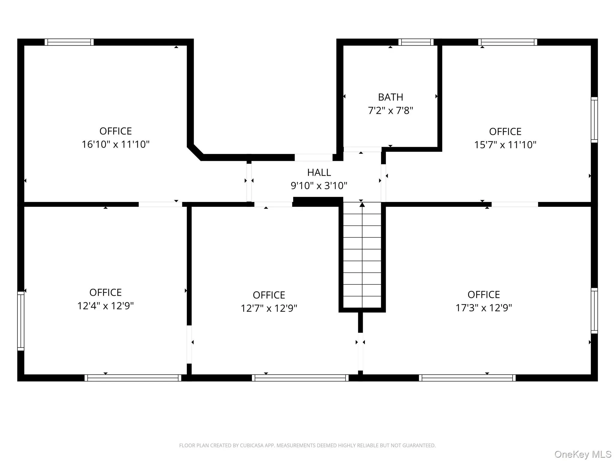
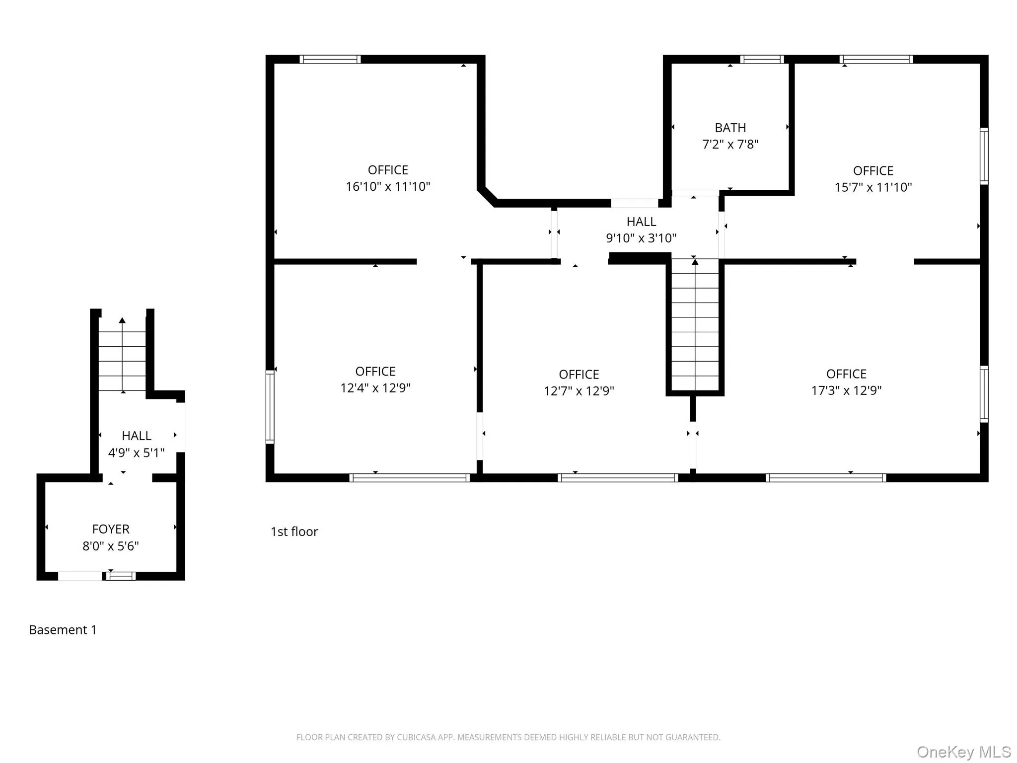
Second-floor office suite available in a professional building. Features five private rooms with a shared common bathroom (shared with only one other tenant). Enter through first-floor common area with interior stair access. Parking lot in rear and front of property.
$1,500/month – all utilities included.
One-year lease required. Available 2/1/2026, possibly earlier
Located on a busy road near restaurants, mailing services, gas stations, and just minutes from Interstate 84 and the NYS Thruway. Ideal for professional use in a high-visibility, convenient location. Building is shared with an insurance company, hair salon and plumber.
Features
- Heating System:
- Baseboard
- Cooling System:
- No
- Parking Features:
- Common
- Sewer:
- Public Sewer
- Utilities:
- Phone Available, Trash Collection Private, Cable Connected, Water Connected, Electricity Connected
Address Map
- City:
- Newburgh (town)
- State:
- NY
- Neighborhood:
- Newburgh (town)
- Street:
- Plank
- Street Number:
- 231
- Street Suffix:
- Road
- Postal Code:
- 12550
- Floor Number:
- 0
- Longitude:
- W75° 55' 34.8''
- Latitude:
- N41° 31' 46.6''
- Directions:
- I 84 or 87 to Route 300 North, Left on S Plank (Route 52), Building is on left
Additional Information
- Construction Materials:
- Brick, Wood Siding
- Agent MlsId:
- 38948
- PhotosCount:
- 13
- Special Listing Conditions:
- See Remarks
- Stories Total:
- 2
- Tax Annual Amount:
- $8,540
- Water Source:
- Public
- Office MlsId:
- GLSP01
Commercial Lease - MLS# 943921
231 Plank Road, Newburgh (town), NY
0.34 Acre
$1,500
Listing ID #943921
Basic Details
- Property Type :
- Commercial Lease
- Property SubType :
- Office
- Listing Type :
- Idx
- Listing ID :
- 943921
- Price :
- $1,500
- Bathrooms Total :
- 0
- Building Area :
- 2,582 Sqft
- Lot Area :
- 0.34 Acre
- Status :
- Active
- Listing Agent :
- Jodi M Gillespie
- Listing Office :
- Gillespie Real Estate LLC














