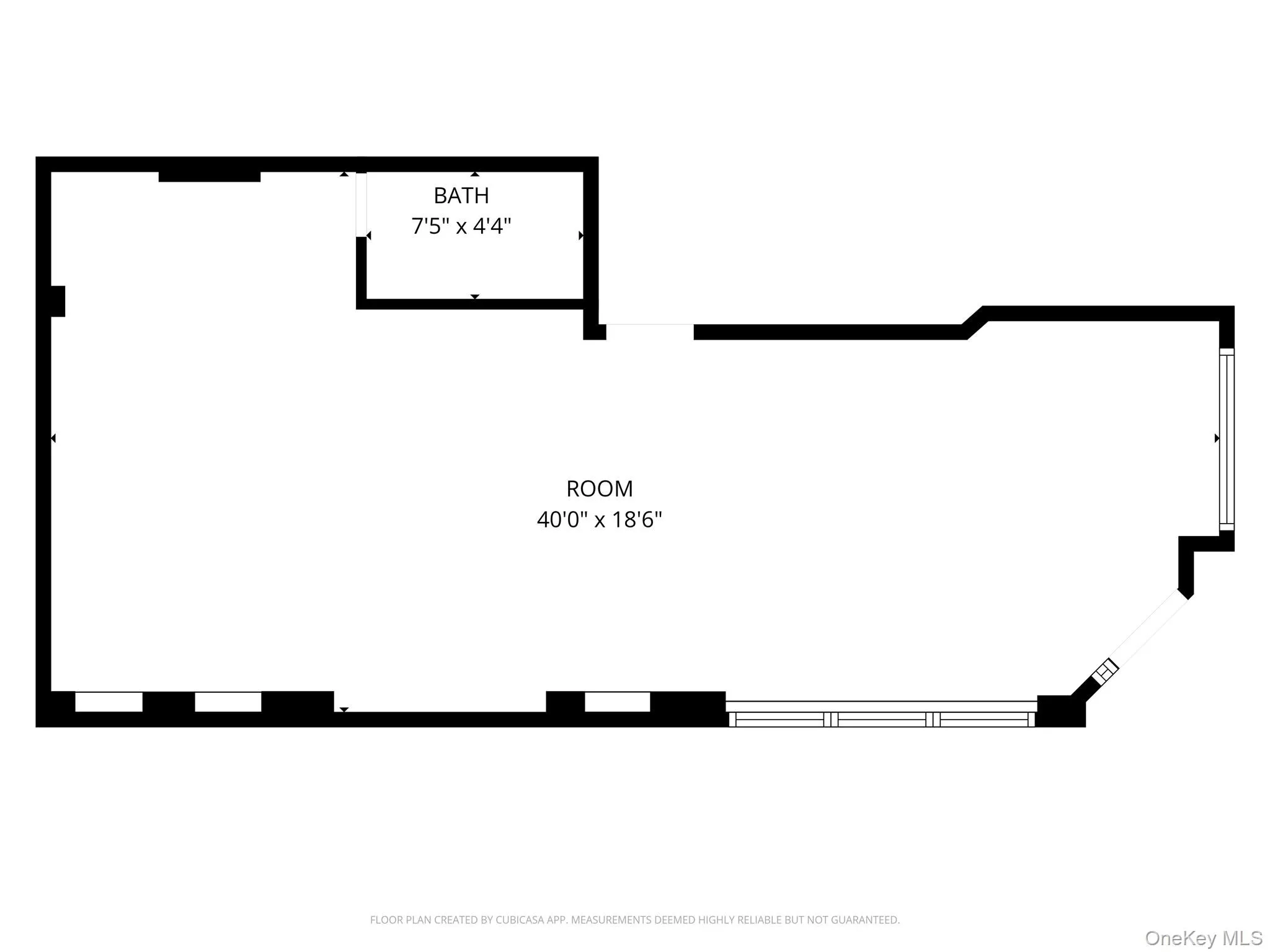
Newly Renovated 772 Sq. Ft. Commercial Space – Prime Ridgewood/Maspeth/Middle Village Border: This beautifully updated 772 sq. ft. commercial space on 60th Place offers prime visibility and high foot traffic at the intersection of Ridgewood, Maspeth, and Middle Village. The storefront features modern tile flooring, recessed lighting, a split-unit HVAC system, and a clean, flexible layout suitable for retail, office, or service-based businesses. The space is freshly renovated and move-in ready, with the landlord open to aesthetic modifications to suit your business needs. Tenant is responsible for all utilities, and lease terms are flexible. This is an excellent opportunity to establish or grow your business in a thriving commercial corridor.
- Heating System:
- Energy Star Qualified Equipment
- Cooling System:
- Energy Star Qualified Equipment
- Basement:
- Crawl Space
- Sewer:
- Public Sewer
- Utilities:
- Phone Available, Electricity Available
- City:
- NY
- State:
- NY
- Street:
- 60th
- Street Number:
- 6286
- Street Suffix:
- Place
- Postal Code:
- 11385
- Floor Number:
- 0
- Longitude:
- W74° 5' 53.8''
- Latitude:
- N40° 42' 31.8''
- Construction Materials:
- Other
- Agent MlsId:
- 204593
- PhotosCount:
- 9
- Special Listing Conditions:
- No
- Tax Annual Amount:
- $13,175
- Water Source:
- Public
- Office MlsId:
- LMGO01
Commercial Lease - MLS# 942320
6286 60th Place, New York, NY
- Property Type :
- Commercial Lease
- Property SubType :
- Mixed Use
- Listing Type :
- Idx
- Listing ID :
- 942320
- Price :
- $3,900
- Bathrooms Total :
- 0
- Building Area :
- 722 Sqft
- Lot Area :
- 0.04 Acre
- Year Built :
- 1920
- Status :
- Active
- Listing Agent :
- Divas Ojha
- Listing Office :
- Prime America Real Estate Inc










