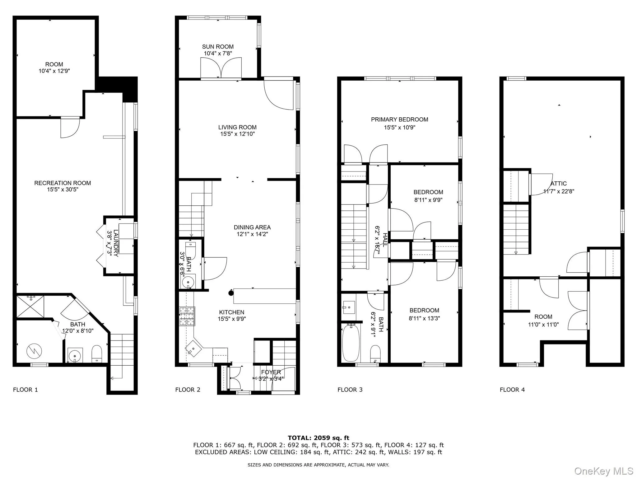
Charming Duplex-Style Colonial in the desirable Rye Neck School District and just a couple of blocks to the Train Station. This beautifully maintained duplex-style apartment lives like a single-family home, ideally located offering over 1,200 SF of living space across two levels. The main level features an inviting entry with a sun room/Den, living room/dining room open to the kitchen with direct access to designated yard space. On the 2nd floor you’ll find three comfortable bedrooms, an updated bathroom, and a walk-up attic offering finished storage space with many possible uses. The basement includes a finished bonus area ideal for use as a rec room or work-out space, laundry area and utility room. Additional highlights include: hardwood floors as seen, 2 off street parking spaces. Convenient- just minutes from Metro North (under 40 minutes to NYC) and Mamaroneck’s vibrant downtown—home to charming shops, restaurants, entertainment, Harbor Island Park, and more. Tenant is responsible for all utilities (Oil heat/hot water, electricity, gas, electric, water. No smoking. Available for immediate occupancy. Good credit and income requirements
- Heating System:
- Oil
- Cooling System:
- No
- Basement:
- Full, Storage Space
- Patio:
- Patio
- Appliances:
- Dishwasher, Refrigerator, Dryer, Washer, Gas Water Heater
- Exterior Features:
- Private Entrance
- Flooring:
- Hardwood
- Interior Features:
- Eat-in Kitchen
- Laundry Features:
- In Basement
- Lot Features:
- Near Public Transit, Level
- Parking Features:
- Driveway, Off Street
- Sewer:
- Public Sewer
- Utilities:
- Trash Collection Public
- City:
- Rye Town
- State:
- NY
- Street:
- Beach
- Street Number:
- 453
- Street Suffix:
- Avenue
- Postal Code:
- 10543
- Floor Number:
- 0
- Longitude:
- W74° 16' 9.8''
- Latitude:
- N40° 57' 22.4''
- Architectural Style:
- Colonial
- Association Amenities:
- Park
- Construction Materials:
- Brick, Frame, Cedar
- Elementary School:
- F E Bellows Elementary School
- High School:
- Rye Neck Senior High School
- Levels:
- Two
- Agent MlsId:
- 7276
- MiddleOrJunior School:
- Rye Neck Middle School
- PhotosCount:
- 36
- Rent Includes:
- No
- Special Listing Conditions:
- No
- Stories Total:
- 2
- Water Source:
- Public
- Office MlsId:
- SPADAR
Residential Lease - MLS# 912872
453 Beach Avenue, Rye Town, NY
- Property Type :
- Residential Lease
- Property SubType :
- Apartment
- Listing Type :
- Idx
- Listing ID :
- 912872
- Price :
- $4,800
- Rooms :
- 6
- Bedrooms :
- 3
- Bathrooms :
- 1
- Half Bathrooms :
- 1
- Bathrooms Total :
- 2
- Square Footage :
- 1,250 Sqft
- Lot Area :
- 0.28 Acre
- Year Built :
- 1920
- Status :
- Active
- Status :
- Active
- Listing Agent :
- Kathleen Spadaro
- Listing Office :
- Spadaro Real Estate, Ltd.





































