Property Description
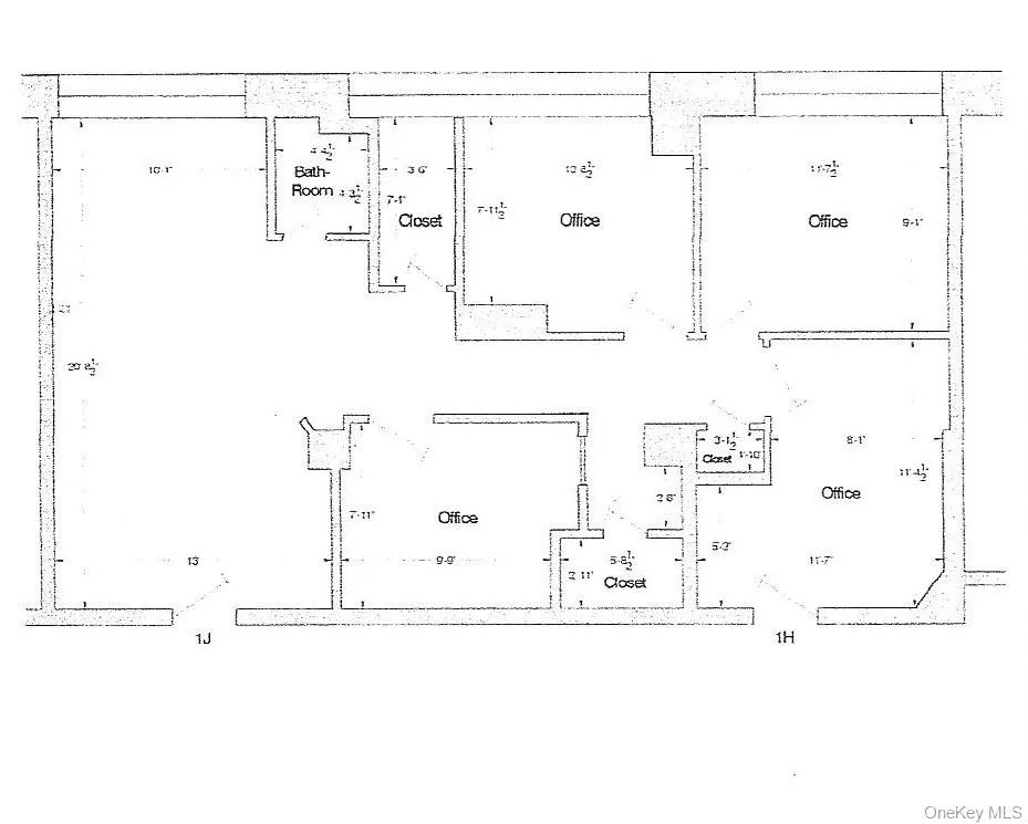
Multiroom, spacious 1st floor office suite on newly renovated commercial floor of a well-kept co-op building. Office has own bathroom, central A/C, daytime on-site parking for visitors, and a live-in superintendent. Walking distance to Metro North, shops, and restaurants. Bus across the street. Close to major highways. Rent includes Heat and Water. Requires Board approval. Additional Information: HeatingFuel:Oil Above Ground,ComUtilitiesAvailable: Cooling, Heating, Lighting,
Features
- Heating System:
- Oil, Hot Water
- Cooling System:
- Central Air
- Appliances:
- Tankless Water Heater
- Flooring:
- Carpet
- Parking Features:
- Off Street, Parking Lot
- Sewer:
- Public Sewer
- Utilities:
- Water Available, Trash Collection Public, Electricity Connected, Sewer Connected
Address Map
- City:
- Rye Town
- State:
- NY
- Street:
- Westchester
- Street Number:
- 388
- Street Suffix:
- Avenue
- Postal Code:
- 10573
- Floor Number:
- 0
- Longitude:
- W74° 19' 36.6''
- Latitude:
- N41° 0' 15.1''
- Directions:
- Westchester Ave to #388
Additional Information
- Construction Materials:
- Other
- Agent MlsId:
- 17745
- PhotosCount:
- 11
- Special Listing Conditions:
- No
- Tax Annual Amount:
- $1
- Water Source:
- Public
- Office MlsId:
- C21ERE
- Zoning:
- 1A
Commercial Lease - MLS# 930222
388 Westchester Avenue, Rye Town, NY
$1,400
Listing ID #930222
Basic Details
- Property Type :
- Commercial Lease
- Property SubType :
- Office
- Listing Type :
- Idx
- Listing ID :
- 930222
- Price :
- $1,400
- Bathrooms Total :
- 0
- Building Area :
- 900 Sqft
- Year Built :
- 1960
- Status :
- Active
- Listing Agent :
- Anna Jakimiec
- Listing Office :
- Century 21 Elite Realty












