Office Space for Lease Full 2nd Floor at 120-15 Liberty Ave, Richmond Hill South, NY 11419
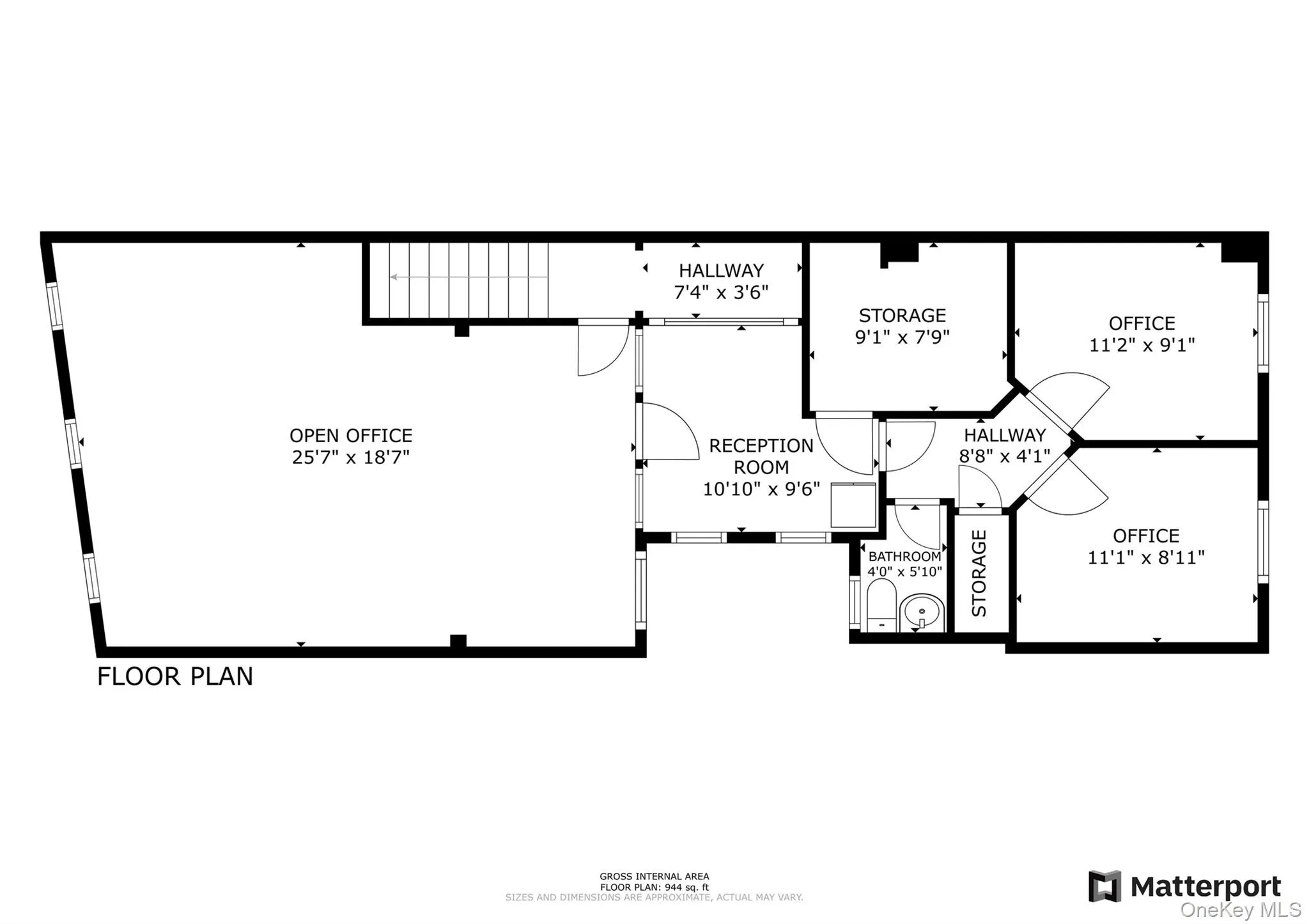
Position your business in the heart of Richmond Hill South with this bright and move-in-ready approx. 1,000 SQFT office space (19 x 54), occupying the entire second floor of a high-visibility building on Liberty Avenue.
The layout includes a dedicated reception area with screened glass for convenience and security, a large open workspace at the front, 3 private offices, and a restroom ideal for a wide range of professional services including medical, legal, accounting, therapy, architecture, engineering, consulting, and more.
Enjoy hard floors, recessed lighting, and abundant natural light throughout. Additional highlights include private entry, signage potential, and 24/7 access.
Located on bustling Liberty Ave with high foot traffic, and close proximity to public transit, subway lines, and major highways.
Schedule a private tour today this high-exposure office wont last!
- Heating System:
- Natural Gas, Hot Water
- Cooling System:
- Wall/window Unit(s)
- Accessibility Features:
- Accessible Stairway
- Flooring:
- Hardwood
- Parking Features:
- Off Street
- Sewer:
- Public Sewer
- Utilities:
- Cable Available, Water Available, Natural Gas Connected, Electricity Connected, Sewer Connected
- City:
- NY
- State:
- NY
- Street:
- Liberty
- Street Number:
- 120-15
- Street Suffix:
- Avenue
- Postal Code:
- 11419
- Floor Number:
- 0
- Longitude:
- W75° 59' 38.3''
- Latitude:
- N40° 42' 45.8''
- Directions:
- Refer to Google Maps
- Construction Materials:
- Brick
- Agent MlsId:
- 181200
- PhotosCount:
- 25
- Special Listing Conditions:
- No
- Stories Total:
- 2
- Tax Annual Amount:
- $16,767
- Water Source:
- Public
- Office MlsId:
- DERE61
Commercial Lease - MLS# 923875
120-15 Liberty Avenue, New York, NY
- Property Type :
- Commercial Lease
- Property SubType :
- Office
- Listing Type :
- Idx
- Listing ID :
- 923875
- Price :
- $3,800
- Bathrooms Total :
- 0
- Building Area :
- 1,026 Sqft
- Lot Area :
- 0.05 Acre
- Year Built :
- 1929
- Status :
- Active
- Listing Agent :
- James Y. Chung
- Listing Office :
- Douglas Elliman Real Estate


























