Search
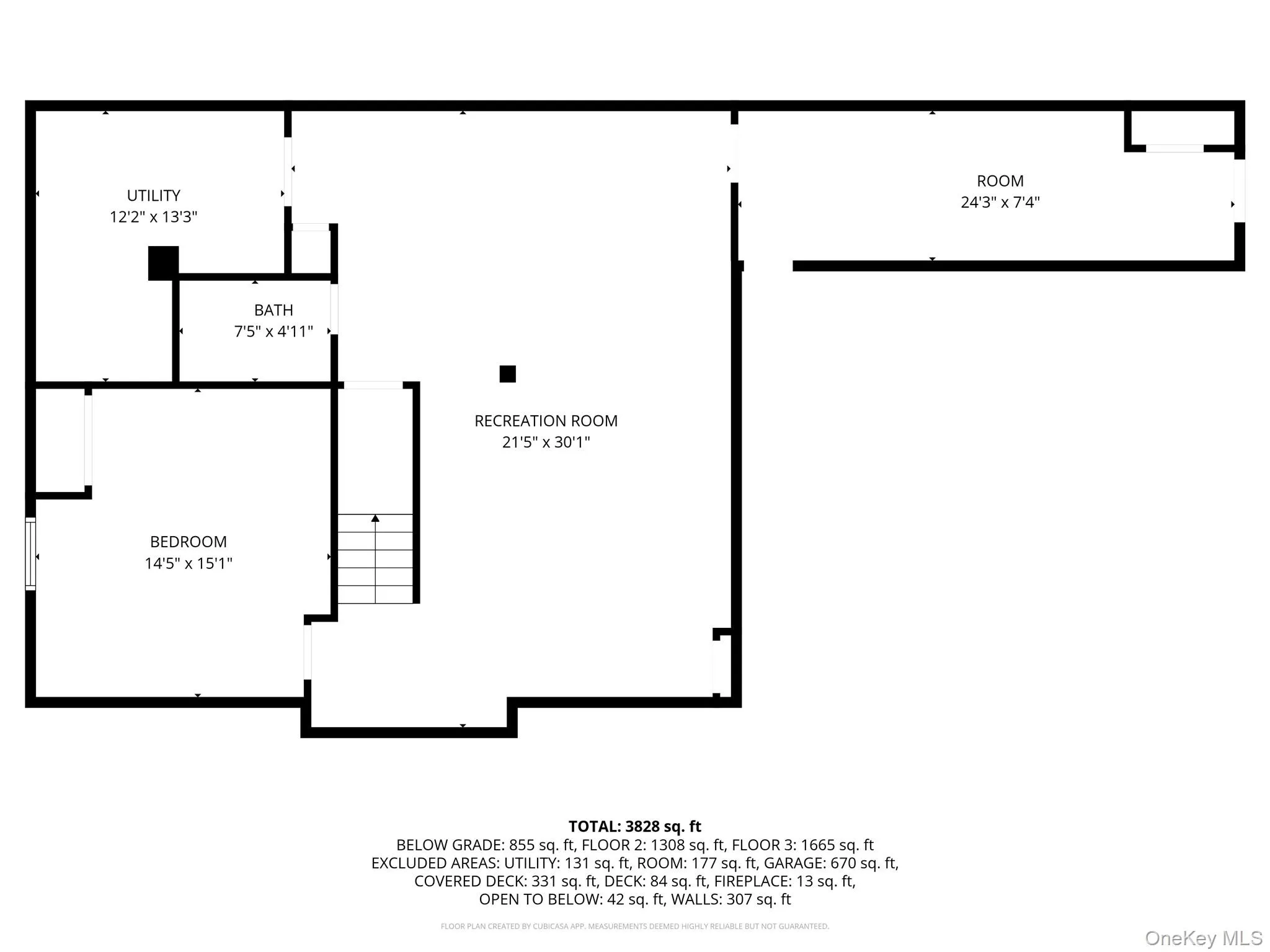
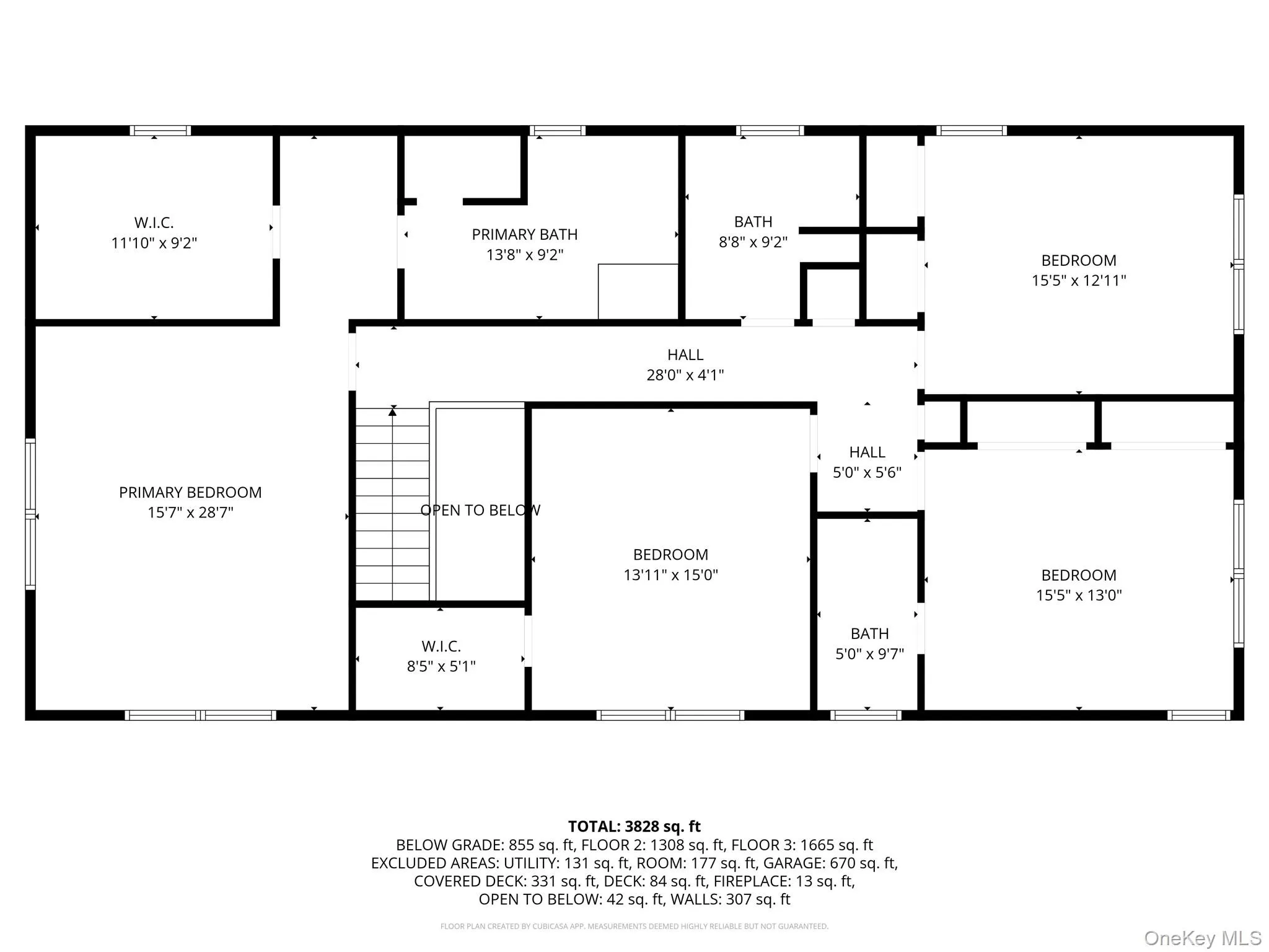
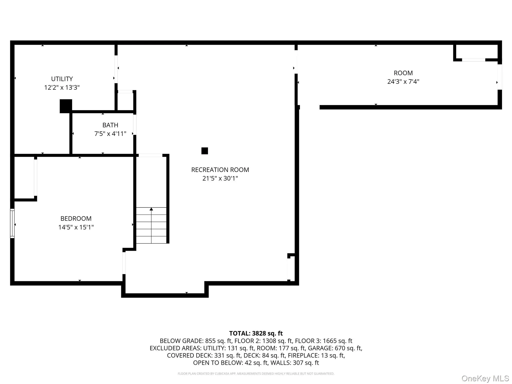
OFFERED AS OFF SEASON RENTAL (NOT YEAR ROUND) – Welcome to 32A Vail Ave, East Quogue, your spectacular East Quogue seasonal retreat with 4,442 sqft designed for endless summer living. With 4 bedrooms, 5 baths and elegant common spaces this home offers room for multigenerational families or groups seeking comfort and style. Step through the foyer into a luminous open floor plan where soaring ceilings, recessed lighting and hardwood floors enhance the flow between living, dining and relaxation. The gourmet kitchen features quartz countertops, stainless steel appliances and an eat-in area ideal for casual meals or children’s crafts. Entertain effortlessly in the formal dining room or gather by the fireplace in the main living area. All four bedrooms are generous sized rooms with one having an en suite bathroom. The master bedroom includes an office work desk, walk in closet and full bath with shower and jacuzzi tub. Additional interior amenities include central air, smart thermostat, central vacuum, high-speed internet, and a separate laundry room. Outside, your sanctuary awaits with privacy around the in ground heated pool, hot tub, covered rear deck all surrounded by serene landscaping. Secure your Hamptons getaway where comfort, style, and relaxation converge.
- Heating System:
- Oil, Forced Air, Hot Air
- Cooling System:
- Central Air
- Basement:
- Finished, Full, Walk-out Access
- Fence:
- Back Yard, Fenced
- Patio:
- Porch, Deck, Covered
- Swimming Pool:
- In Ground, Vinyl, Electric Heat
- Appliances:
- Dishwasher, Oven, Refrigerator, Microwave, Stainless Steel Appliance(s), Dryer, Washer, Electric Range
- Fireplace Features:
- Living Room
- Fireplaces Total:
- 1
- Flooring:
- Hardwood, Tile
- Garage Spaces:
- 3
- Interior Features:
- Eat-in Kitchen, Entrance Foyer, Open Kitchen, Open Floorplan, High Ceilings, Smart Thermostat, Walk-in Closet(s), Chefs Kitchen, High Speed Internet, Formal Dining, Primary Bathroom, Central Vacuum, Entertainment Cabinets, First Floor Full Bath, Quartz/quartzite Counters, Built-in Features, Recessed Lighting, Sound System
- Laundry Features:
- In Hall, Laundry Room, Electric Dryer Hookup
- Parking Features:
- Driveway
- Sewer:
- No
- Utilities:
- Trash Collection Private, Water Connected, Electricity Connected
- City:
- Southampton
- State:
- NY
- Street:
- Vail
- Street Number:
- 32A
- Street Suffix:
- Avenue
- Postal Code:
- 11942
- Floor Number:
- 0
- Longitude:
- W73° 25' 6.2''
- Latitude:
- N40° 50' 42.9''
- Architectural Style:
- Traditional
- Construction Materials:
- Frame
- Elementary School:
- East Quogue School
- High School:
- Westhampton Beach Senior High Sch
- Levels:
- Three Or More
- Agent MlsId:
- 198264
- MiddleOrJunior School:
- Westhampton Middle School
- PhotosCount:
- 48
- Rent Includes:
- No
- Special Listing Conditions:
- No
- Stories Total:
- 2
- Water Source:
- Public
- Office MlsId:
- RLLE17
Residential Lease - MLS# 924102
32A Vail Avenue, Southampton, NY
- Property Type :
- Residential Lease
- Property SubType :
- Single Family Residence
- Listing Type :
- Idx
- Listing ID :
- 924102
- Price :
- $4,400
- Rooms :
- 17
- Bedrooms :
- 4
- Bathrooms :
- 5
- Bathrooms Total :
- 5
- Square Footage :
- 4,442 Sqft
- Lot Area :
- 1.13 Acre
- Year Built :
- 2005
- Status :
- Active
- Status :
- Active
- Listing Agent :
- Thomas Panebianco
- Listing Office :
- Realty Connect USA L I Inc

















































