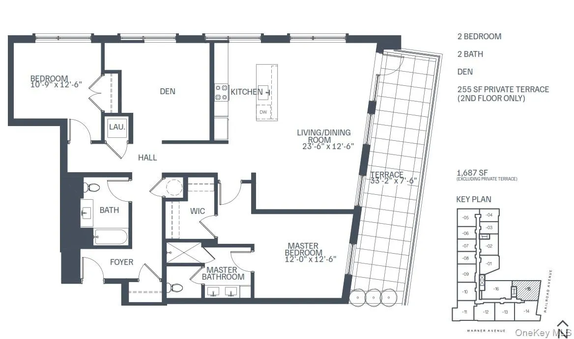
This spacious 1,687 sq. ft. residence features 2 bedrooms, 2.5 bathrooms, a dedicated home office, and a private terrace—perfect for morning coffee, outdoor dining, or unwinding in the fresh air.
The oversized living and dining area offers plenty of room to entertain or relax and connects seamlessly to the terrace for a true indoor-outdoor living experience. The bright, eat-in kitchen is thoughtfully designed with ample workspace and casual dining potential. A convenient powder room off the main living area enhances flow and function.
The primary suite is a private retreat, featuring a large walk-in closet, an additional storage closet, and a spa-like en-suite bath. The second bedroom also includes a custom walk-in closet and sits adjacent to a full bathroom and the home office—ideal for guests, additional workspace, or privacy.
Additional highlights include a full laundry room with in-unit washer and dryer, generous storage throughout, and a smart layout that blends style with everyday ease.
Residents enjoy secure keyless entry, a beautifully furnished lobby with Amazon package room, resident lounge, fitness center, and business suite—all included in the rent. Indoor garage parking with EV charging stations, private storage, on-site resident super, and pet-friendly policies (see Documents for details) round out the full-service experience.
Perfectly located near the train, village shops, parks, and major highways, this brand-new building delivers upscale living in an unbeatable location.
- Heating System:
- Natural Gas, Forced Air, Energy Star Qualified Equipment
- Cooling System:
- Central Air
- Appliances:
- Dishwasher, Refrigerator, Dryer, Washer, Cooktop, Energy Star Qualified Appliances, Gas Water Heater
- Exterior Features:
- Private Entrance
- Flooring:
- Hardwood
- Garage Spaces:
- 1
- Interior Features:
- Eat-in Kitchen, Elevator, Open Kitchen, Walk-in Closet(s), Double Vanity, Kitchen Island, First Floor Bedroom, Primary Bathroom, First Floor Full Bath, Low Flow Plumbing Fixtures, Quartz/quartzite Counters
- Laundry Features:
- In Unit
- Lot Features:
- Near Public Transit
- Parking Features:
- Assigned, Garage
- Sewer:
- Public Sewer
- Utilities:
- Trash Collection Public, Natural Gas Connected, Cable Connected, Water Connected, Electricity Connected
- City:
- North Hempstead
- State:
- NY
- Street:
- Warner
- Street Number:
- 333
- Street Suffix:
- Avenue
- Postal Code:
- 11576
- Floor Number:
- 0
- Longitude:
- W74° 21' 1.8''
- Latitude:
- N40° 47' 6.3''
- Direction Faces:
- South
- Subdivision Name:
- Bryant Plaza
- Architectural Style:
- Other
- Association Amenities:
- Live In Super, Business Center, Elevator(s), Park, Fitness Center, Lounge, Maintenance Grounds, Parking, Snow Removal
- Construction Materials:
- Brick, Hardiplank Type
- Elementary School:
- East Hills Elementary School
- High School:
- Roslyn High School
- Levels:
- One
- Agent MlsId:
- 104656
- MiddleOrJunior School:
- Roslyn Middle School
- PhotosCount:
- 13
- Special Listing Conditions:
- No
- Stories Total:
- 4
- VirtualTour URL:
- https://a.peek.us/viewer?token=Xd9aly9pEr&showListingDetails=true
- Water Source:
- Public
- Office MlsId:
- CMPA03
Residential Lease - MLS# 890003
333 Warner Avenue, North Hempstead, NY
- Property Type :
- Residential Lease
- Property SubType :
- Apartment
- Listing Type :
- Idx
- Listing ID :
- 890003
- Price :
- $8,000
- Rooms :
- 5
- Bedrooms :
- 2
- Bathrooms :
- 2
- Bathrooms Total :
- 2
- Square Footage :
- 1,687 Sqft
- Year Built :
- 2024
- Status :
- Active
- Listing Agent :
- Melanie J. Cogan
- Listing Office :
- Compass Greater NY LLC














