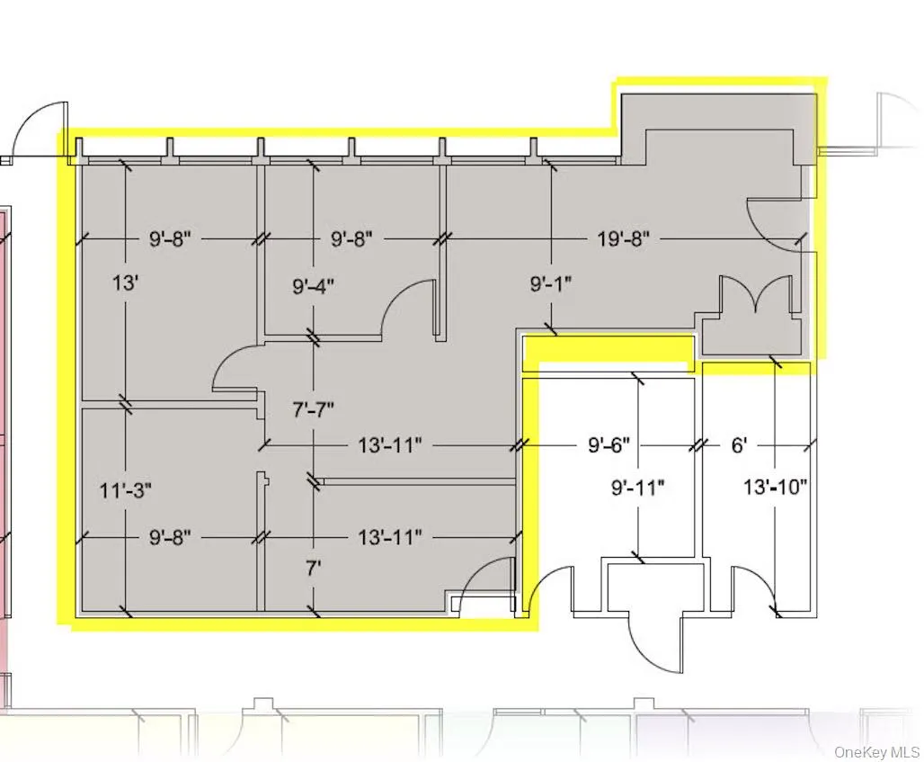
Property Description
Office space available perfect for business or medical office, fully carpeted, two private offices with central air and high ceilings. Excellent office space in well maintained building, right off of I287 exit 5, just 1/2 mile from downtown White Plains and metro north railroad. High traffic area, good visibility on Route 119. Plenty of parking! Property management located on premises.
Features
- Heating System:
- Forced Air
- Cooling System:
- Central Air
- Accessibility Features:
- Accessible Approach with Ramp, Accessible Common Area, Accessible Hallway(s)
- Flooring:
- Carpet
- Parking Features:
- Common, Parking Lot
- Sewer:
- Public Sewer
- Utilities:
- Trash Collection Private, Natural Gas Connected, Water Connected, Electricity Connected, Sewer Connected
Address Map
- City:
- Greenburgh
- State:
- NY
- Neighborhood:
- Greenburgh
- Street:
- Tarrytown
- Street Number:
- 77
- Street Suffix:
- Road
- Postal Code:
- 10607
- Floor Number:
- 0
- Longitude:
- W74° 12' 35.6''
- Latitude:
- N41° 2' 46.2''
Additional Information
- Construction Materials:
- Brick
- Agent MlsId:
- 31937
- PhotosCount:
- 11
- Special Listing Conditions:
- No
- Tax Annual Amount:
- $86,727
- Water Source:
- Public
- Office MlsId:
- STPROP
Commercial Lease - MLS# 892415
77 Tarrytown Road, Greenburgh, NY
1.45 Acre
$1,860
Listing ID #892415
Basic Details
- Property Type :
- Commercial Lease
- Property SubType :
- Office
- Listing Type :
- Idx
- Listing ID :
- 892415
- Price :
- $1,860
- Bathrooms Total :
- 0
- Building Area :
- 970 Sqft
- Lot Area :
- 1.45 Acre
- Year Built :
- 1980
- Status :
- Active
- Listing Agent :
- Aurora Novakaj
- Listing Office :
- Sterling Property Solutions












