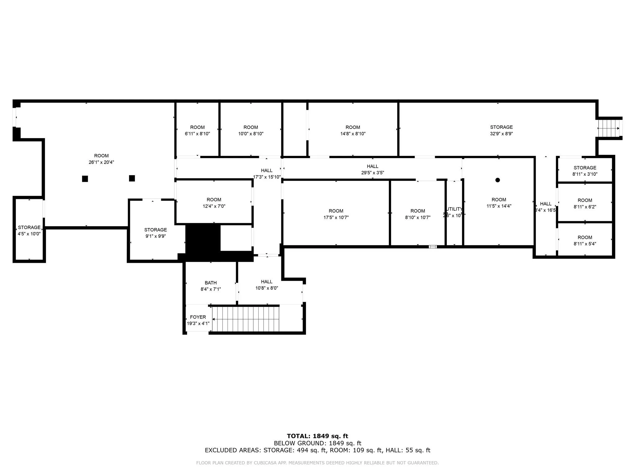
Discover a versatile lower-level commercial space available for lease in a prime Oceanside location on bustling Long Beach Road. Ideal for professionals, small businesses, or satellite offices, this unit is thoughtfully divided into multiple private offices, offering a flexible layout to suit a range of business needs.
The space features:
-Several individual office rooms perfect for private work areas or client meetings
A renovated bathroom
2 Private lower-level entrance
Excellent visibility and accessibility from Long Beach Rd
Close proximity to major transportation, local shops, and restaurants
Whether you’re a Specialist, consultant, or small business owner, this Oceanside commercial space offers affordability, functionality, and a professional setting to grow your business.
Schedule a viewing today and secure your spot in this well-trafficked location!
- Heating System:
- Natural Gas
- Cooling System:
- Central Air
- Parking Features:
- On Street, Off Street, Parking Lot
- Sewer:
- Public Sewer
- Utilities:
- Natural Gas Available, Sewer Available, Water Available, Electricity Available, Water Connected
- City:
- Hempstead
- State:
- NY
- Street:
- Long Beach
- Street Number:
- 2816
- Street Suffix:
- Road
- Postal Code:
- 11572
- Floor Number:
- 0
- Longitude:
- W74° 21' 35.7''
- Latitude:
- N40° 38' 35.1''
- PostalCity:
- Oceanside
- Construction Materials:
- Brick, Frame
- Agent MlsId:
- 192700
- PhotosCount:
- 27
- Special Listing Conditions:
- No
- Water Source:
- Public
- Office MlsId:
- SPH06
Commercial Lease - MLS# 855190
2816 Long Beach Road, Hempstead, NY
- Property Type :
- Commercial Lease
- Property SubType :
- Office
- Listing Type :
- For Rent
- Listing ID :
- 855190
- Price :
- $3,000
- Bathrooms Total :
- 0
- Building Area :
- 1,849 Sqft
- Status :
- Active
- Listing Agent :
- Katherine Koniecko
- Listing Office :
- Signature Premier Properties




























